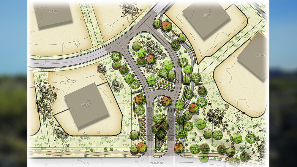
Located in North Scottsdale, Boulder Ranch provides residents with over 80 acres of rural lifestyle while maintaining a proximity to the city life. The community offers a sustainable neighborhood that is in harmony with the natural environment. The design focused on preservation of the area’s natural desert character including the Sonoran Preserve, Natural Area Open Space (NAOS) around the homes, and the unique boulder outcroppings that reside on site. The community entry is set in a desert contemporary architecture character. Organic road geometry weaves through an existing boulder formation and enhanced native vegetation. Open view corridors throughout the development provides picturesque views of the mountains, trail connections to the Sonoran Preserve, and the city’s trail system; offering cyclists and hikers plenty of high desert terrain and landscape to explore. Boulder Ranch has a robust amount of environmentally sensitive open space, allowing the community to benefit from the southwestern wildlife and honoring the natural state of the area known for its bedrock of boulders throughout. This community is perfect for the outdoor recreation enthusiasts who love calling the desert home.
Client Name
Toll Brothers
Location
Scottsdale, Arizona
Project Type
Fresh off the Board
Size
80.27 Acres
Services Rendered
Land Planning
Site Planning
Master Planning
Entitlement Services
Landscape Architecture
Character & Theming
Marketing Trail Visualization
Signage Master Planning
Cost Estimates & Budget Analysis
Grading Design
Construction Services
Community Outreach Services
Design Features
Gated Entry
Land Design
Environmentally Sensitive
Sonoran Preserve








